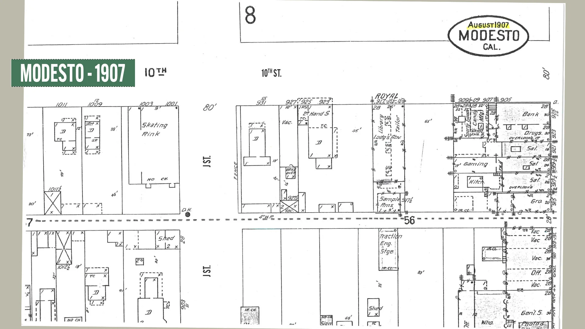
What 10th & J. St. looked like from 1894 to 1919?

The intersection of 10th and J Streets in Modesto has an allure that few other intersections from 1st to 18th possess. In Modesto’s earliest years, two men, Charles Murray and W.A. Jones had a vision to turn the four corners of 10th and J Streets into what they called “The New Center”. Years later, in the 1950’s, it would be known as the hub of cruising made famous in George Lucas’ classic film, American Graffiti. In Modesto’s earliest days (1894-1919), the corners of 10th and J St. saw incredible transformation. From stables, residences, a bar and an ice skating rink to what you see today … original buildings from 1913 — the Murray and Jones Building, Est. 1913.

modesto_map_1894.jpg

modesto_map_1907.jpg

modesto_map_1911.jpg

modesto_map_1919.jpg

Many thanks to Janet Lancaster and the good folks at the McHenry Museum for their help in researching the history of Murray and Jones. Much appreciated.

Robert Carpenter

I am passionate about helping business owners and leaders communicatewell … in print, online and in person. I operate Communicatewell - a communication firm that’s helps people Grow Their Business, Build Their Brand and Engage Their People.

https://www.communicatewell.com
Previous
Previous

Who was in the Murray and Jones building in the ‘20s.

Next
Next

History lives on in Modesto.